Arun Excello Sanjani Overview

Property Type Flats
Project Location Chengalpet, Chennai
Bedroom(s) 2 BHK
Unit Sizes 625 - 790 Sq.Ft
Price Range 27.18 L - 34.36 L (Base Price) *
Rate per Sqft 4,348
Total Land Area 0.32 Acres
No. of Units 344
Total Blocks 3
Total Floors Stilt + 4 Floors
Possession Ready to Occupy
Rera Id TN/01/Building/0091/2018

Configuration

Config
Size (Sq.ft)
Price
2 BHK Flats
625 - 790
27.18 L - 34.36 L *

More About Arun Excello Sanjani

Our management is happy to announce the launch of Compact Homes“Sanjani” by Arun Excello (Member of CREDAI) located at Chengalpattu. We present yet another GOLDEN OPPORTUNITY to those who have missed to book a flat in our earlier “Saindhavi” Project at same location. We invite you all to make use of this opportunity to realise your dream of owning a "HOME"...now...! The flats in offer are functional units with efficient design and crisp elevation and free from frills. This will cater to a large cross section of the society who can afford a dream home which will be within their reach. This project is located in Chengalpet on the State highway SH 58, one of the fast developing corridors with good road and rail connectivity and other social infrastructure. It is strategically located between the two rapidly developing areas Chengalpet, OMR and Mahabalipuram on ECR. There is a growing need for decent, hygienic and affordable living space for those employed in and around this emerging and ever growing IT and Automobile hub in Mahindra World City and this requirement has made our project “Sanjani” ideal and suitable at this location. These Compact Homes are offered at an affordable and competitive price which will suit you and as well it is an ideal investment proposition. All the flats are Double BHK in a Stilt plus 4 Floors structure.

Address

Address: No.82/2A1, Medi tech park road, Sameeragarden, Village, Nenmeli, Chengalpet, Chennai, Tamil Nadu 603003, India.

Amenities

  • Lifts
  • Landscaped Seating Areas
  • Kids play area
  • DG Power Backup

Photos & Videos

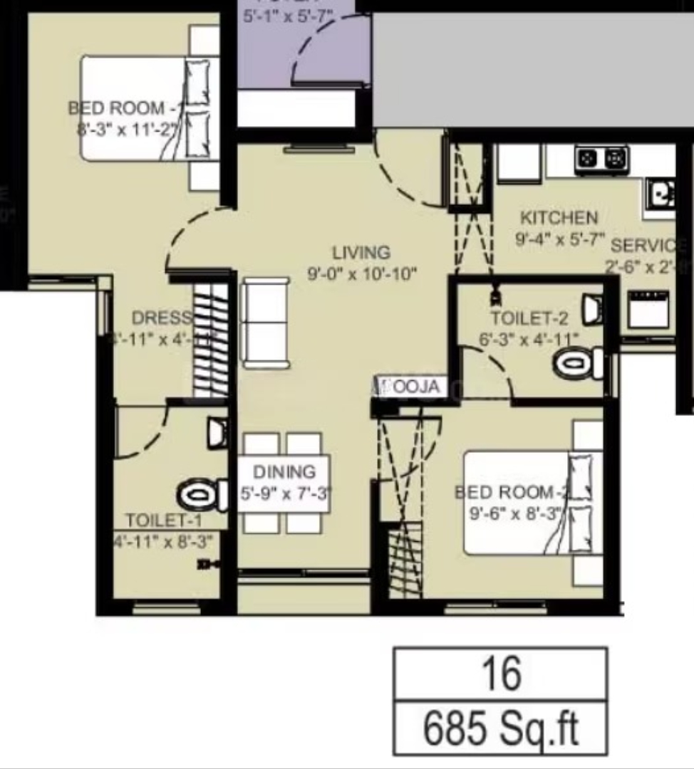
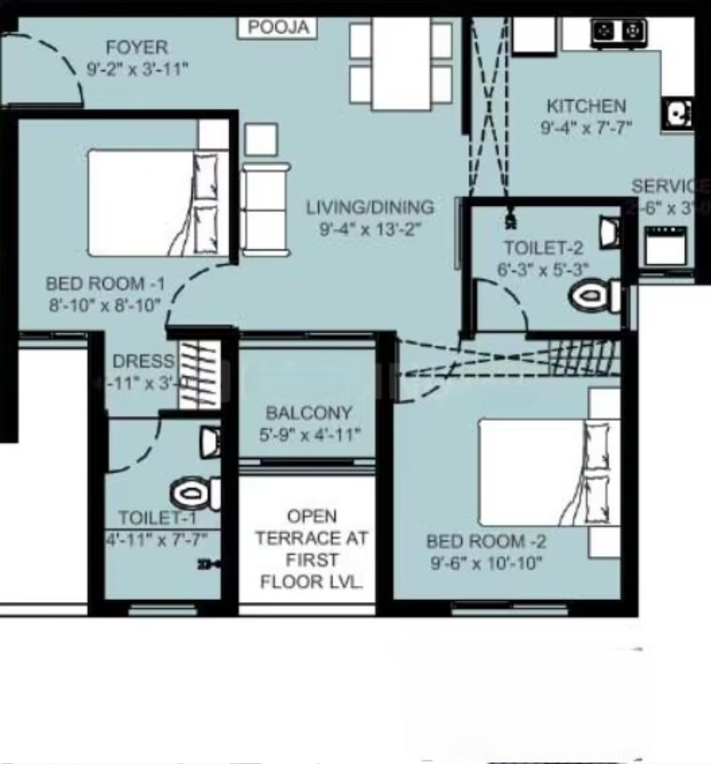
Floor Plans & Pricing

2 BHK Flats
625 Sq.ft
685 Sq.ft
730 Sq.ft
790 Sq.ft
2 BHK Price at 27.18 L* (Base Price)
2 BHK Price at 29.79 L* (Base Price)
2 BHK Price at 31.57 L* (Base Price)
2 BHK Price at 34.36 L* (Base Price)
EMI Calculator
Lakhs
0 25 50 75 100 125 150 175 200
%
5 7.5 10 12.5 15 17.5 20 22.5
Years
0 5 10 15 20 25 30 35
  • Cost of Home

    27 L

  • Loan Amount

    L

  • Monthly EMI

  • Total Interest Payable

  • Total Amount Payable

    Principal + Interest

FAQs About Arun Excello Sanjani in Chengalpet, Chennai

Where is Arun Excello Sanjani located?

Arun Excello Sanjani is located in Chengalpet, Chennai

What are the unit sizes available in Arun Excello Sanjani?

Unit sizes of the Arun Excello Sanjani ranges from 625 - 790 Sq.Ft .

Is the Arun Excello Sanjani RERA registered?

Yes, Arun Excello Sanjani is registered under TNRERA and the registration number is TN/01/Building/0091/2018.

What is the price range of Arun Excello Sanjani in Chengalpet, Chennai?

The price of Arun Excello Sanjani ranges between 27.18 L - 34.36 L *.

How many units are available in Arun Excello Sanjani?

There are about 344 units in this project.

What is the total area of Arun Excello Sanjani?

Arun Excello Sanjani Built across 0.32 Acres of land.

Projects Near Arun Excello Sanjani
Other Projects by Arun Excello Constructions LLP