BC Nova Overview

Property Type Flats
Project Location Kundrathur, Chennai
Bedroom(s) 2 BHK
Unit Sizes 807 - 813 Sq.Ft
Price Range 61 L - 62 L (All Inclusive) *
Rate per Sqft 7,558
Total Land Area 0.12 Acres
No. of Units 6
Total Blocks 1
Total Floors Stilt + 3 Floors
Possession Under Construction (Aug 2026)

Configuration

Config
Size (Sq.ft)
Price
2 BHK Flats
807 - 813
61 L - 62 L *

More About BC Nova

Once you step into BC Nova by Bharathi Construction, located in Kundrathur, Chennai, your life will never be the same again. This exclusive project consists of a compact size limited to only 6 units of 2 BHK flats, ideal for families, first home buyers or anyone looking for a compact and stylish home. Across Stilt + 3 floors available in 807 sq ft to 813 sq ft. Each flat is designed invitingly, and you will feel at home as you walk in.

These flats are all about smart living with no compromise. Essential amenities included will make daily life even easier and convenient. It is a place for families to grow, bond, and live life. With good layouts, finish specifications, and affordable price points, BC Nova in Kundrathur is the perfect opportunity to be a proud owner of your own home that is comfortable, clever, and neat.

This convenient location provides every opportunity for your new home to fulfil your every need for the enjoyment of starting a new life together.

Address

Address: 63, Murugan Kovil Road, Kundrathur, Chennai, Tamil Nadu 600069, India.

Amenities

  • Automatic Lift
  • CCTV Camera
  • Covered Car Parking
  • Potable Water

Floor Plans & Pricing

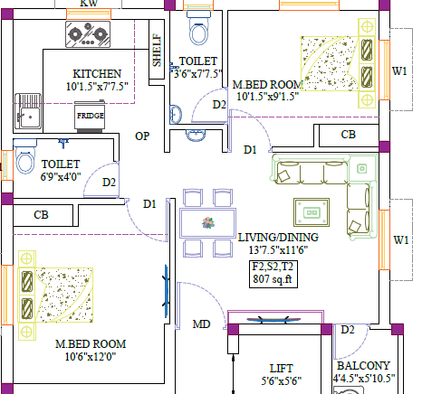
2 BHK Flats
807 Sq.ft
813 Sq.ft
2 BHK Price at 61 L* (Base Price)
2 BHK Price at 62 L* (Base Price)
EMI Calculator
Lakhs
0 25 50 75 100 125 150 175 200
%
5 7.5 10 12.5 15 17.5 20 22.5
Years
0 5 10 15 20 25 30 35
  • Cost of Home

    61 L

  • Loan Amount

    30. L

  • Monthly EMI

  • Total Interest Payable

  • Total Amount Payable

    Principal + Interest

FAQs About BC Nova in Kundrathur, Chennai

Where is BC Nova located?

BC Nova is located in Kundrathur, Chennai

What are the unit sizes available in BC Nova?

Unit sizes of the BC Nova ranges from 807 - 813 Sq.Ft .

What is the price range of BC Nova in Kundrathur, Chennai?

The price of BC Nova ranges between 61 L - 62 L *.

How many units are available in BC Nova?

There are about 6 units in this project.

What is the total area of BC Nova?

BC Nova Built across 0.12 Acres of land.

Projects Near BC Nova
Other Projects by Bharathi Construction