Budget Sai Jailakshmi Gardens Overview

Property Type Individual House
Project Location Thiruvallur, Chennai
Bedroom(s) 2 & 3 BHK
Unit Sizes 699 - 1283 Sq.Ft
Price Range 27 L - 43 L (Base Price) *
Total Land Area 5 Acres
No. of Units 71
Total Blocks Not Mentioned
Total Floors Ground + 1 Floor
Possession Ready to Occupy

Price of Budget Sai Jailakshmi Gardens

Config
Size (Sq.ft)
Price
2 BHK House
699 - 916
27 L - 36 L *
3 BHK House
1283
43 L *

More About Budget Sai Jailakshmi Gardens

Imagine a place where you master your own space, where every nook and corner reflects your style. Welcome to Budget Sai Jailakshmi Gardens in Thiruvallur, a premier project offering 2 and 3-BHK individual houses designed to offer you the luxury of space and the privilege of privacy. This prestigious project by Budget Housing and Properties sprawls across a lush 5-acre expanse, offering a harmonious blend of comfort, luxury, and affordability. The meticulously designed homes with unit sizes ranging from 699 to 1283 sq. ft are thoughtfully planned to maximize space and functionality. The project comprises 71 units spread across the ground plus one floor, providing a low-density living environment that promotes community interaction while ensuring privacy. As an additional advantage, this is an on-road project, which will yield investment as well. Come, and experience a world of tranquility, comfort, and luxury at Budget Sai Jailakshmi Gardens - your dream home awaits! Discover how these houses can transform your living experience.

Address

Address: Kavanur Main Road, Thiruvallur, Chennai, Tamil Nadu 602001, India.

Amenities

  • Full Compounded
  • Gated Community
  • Black Thar Road
  • 3 Phase EB
  • Street Light
  • Park & Play Ground
  • CCTV Camera and Security

Photos & Videos

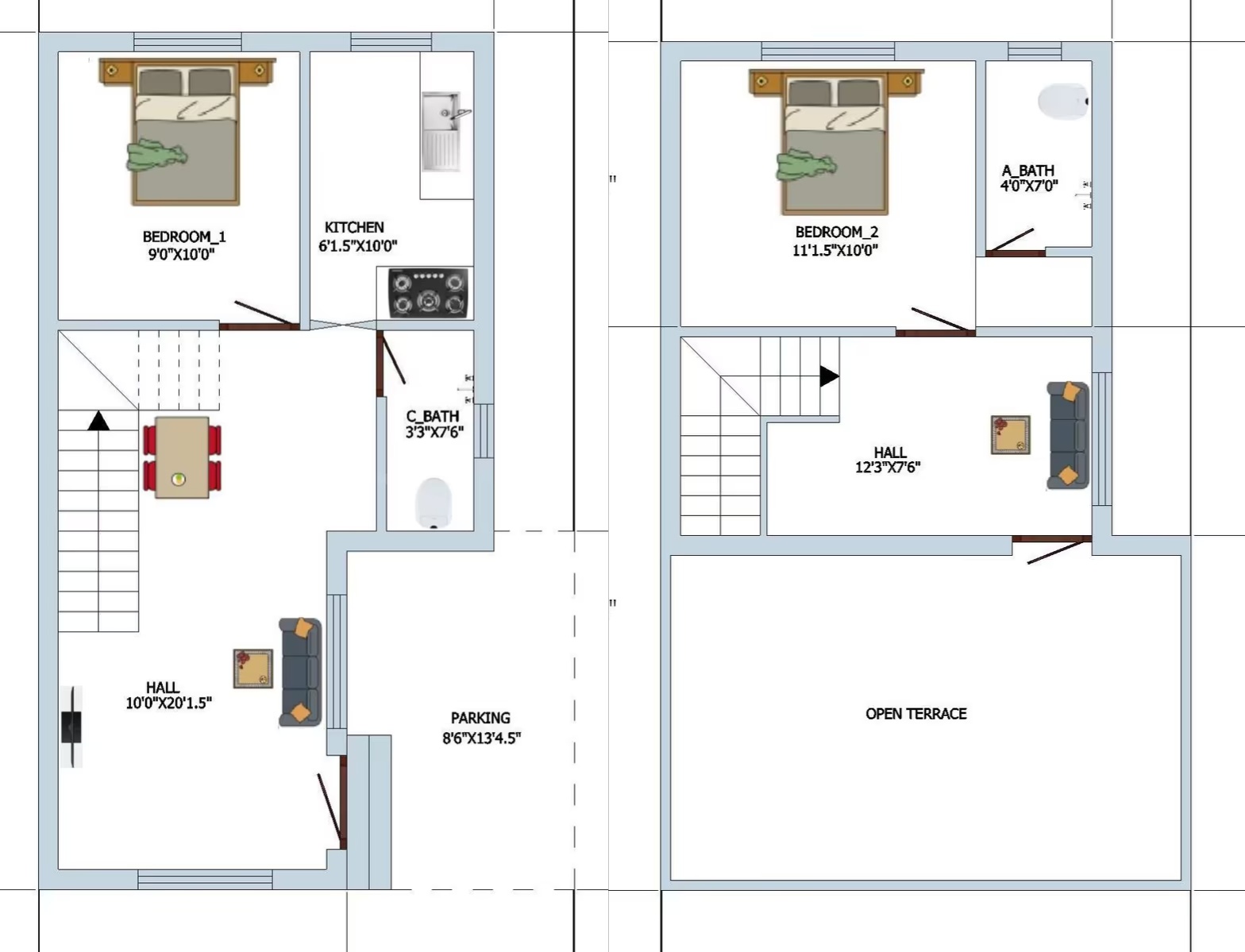
Floor Plans & Pricing

2 BHK House
3 BHK House
699 Sq.ft
880 Sq.ft
916 Sq.ft
2 BHK Price at 27 L* (Base Price)
2 BHK Price at 31 L* (Base Price)
2 BHK Price at 36 L* (Base Price)
1283 Sq.ft
3 BHK Price at 43 L* (Base Price)
EMI Calculator
Lakhs
0 25 50 75 100 125 150 175 200
%
5 7.5 10 12.5 15 17.5 20 22.5
Years
0 5 10 15 20 25 30 35
  • Cost of Home

    27 L

  • Loan Amount

    L

  • Monthly EMI

  • Total Interest Payable

  • Total Amount Payable

    Principal + Interest

FAQs About Budget Sai Jailakshmi Gardens in Thiruvallur, Chennai

Where is Budget Sai Jailakshmi Gardens located?

Budget Sai Jailakshmi Gardens is located in Thiruvallur, Chennai

What are the unit sizes available in Budget Sai Jailakshmi Gardens?

Unit sizes of the Budget Sai Jailakshmi Gardens ranges from 699 - 1283 Sq.Ft .

What is the price range of Budget Sai Jailakshmi Gardens in Thiruvallur, Chennai?

The price of Budget Sai Jailakshmi Gardens ranges between 27 L - 43 L *.

How many units are available in Budget Sai Jailakshmi Gardens?

There are about 71 units in this project.

What is the total area of Budget Sai Jailakshmi Gardens?

Budget Sai Jailakshmi Gardens Built across 5 Acres of land.

Projects Near Budget Sai Jailakshmi Gardens
Other Projects by Budget Housing and Properties