Guru Brindavan Garden Overview

Property Type Flats
Project Location Ayanambakkam, Chennai
Bedroom(s) 2 & 3 BHK
Unit Sizes 1003 - 1413 Sq.Ft
Price Range 55.16 L - 77.72 L (Base Price) *
Rate per Sqft 5500
Total Land Area 3.75 Acres
No. of Units 126
Total Blocks 2
Total Floors Stilt + 3 Floors
Possession Ready to Occupy
Rera Id TN/02/Building/0247/2018

Configuration

Config
Size (Sq.ft)
Price
2 BHK Flats
1003 - 1018
55.16 L - 55.99 L *
3 BHK Flats
1367 - 1413
75.19 L - 77.72 L *

More About Guru Brindavan Garden

Guru Brindavan Garden by Guru Raghavendra Foundations is your dream destination for exclusive, well-designed, luxurious residential flats located at Vanagaram Junction main road, adjacent to Poonamalle high road, close to the upmarket Anna Nagar and Mogappair West. Situated closer to Apollo Speciality and Children Hospital, Brindavan Garden is the perfect lifestyle residential habitat with premium amenities, just 10 minutes away from Anna Nagar at actually 1/3rd cost.

Offering abundant open space and landscaping with high-class lifestyle amenities and services, this project has 126 Apartments in 2 Elevated blocks with stilt + 9 floors.

Come, experience luxury lifestyle living in its full glory, only at Guru Brindavan Garden - Your Perfect World.

Address

Address: Vanagaram-Ambattur Road, Ayanambakkam, Chennai, Tamil Nadu 600095, India.

Amenities

  • Swimming Pool
  • Children's Play Area
  • Power Backup
  • Indoor Games
  • Jogging Track
  • Reserved Parking
  • Gym
  • Party Hall
  • Security

Photos & Videos

Floor Plans & Pricing

2 BHK Flats
3 BHK Flats
1003 Sq.ft
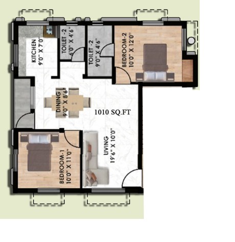
1010 Sq.ft
1018 Sq.ft
2 BHK Price at 55.16 L* (Base Price)
2 BHK Price at 55 L* (Base Price)
2 BHK Price at 55.99 L* (Base Price)
1367 Sq.ft
1413 Sq.ft
3 BHK Price at 75.19 L* (Base Price)
3 BHK Price at 77.72 L* (Base Price)
EMI Calculator
Lakhs
0 25 50 75 100 125 150 175 200
%
5 7.5 10 12.5 15 17.5 20 22.5
Years
0 5 10 15 20 25 30 35
  • Cost of Home

    55 L

  • Loan Amount

    L

  • Monthly EMI

  • Total Interest Payable

  • Total Amount Payable

    Principal + Interest

FAQs About Guru Brindavan Garden in Ayanambakkam, Chennai

Where is Guru Brindavan Garden located?

Guru Brindavan Garden is located in Ayanambakkam, Chennai

What are the unit sizes available in Guru Brindavan Garden?

Unit sizes of the Guru Brindavan Garden ranges from 1003 - 1413 Sq.Ft .

Is the Guru Brindavan Garden RERA registered?

Yes, Guru Brindavan Garden is registered under TNRERA and the registration number is TN/02/Building/0247/2018.

What is the price range of Guru Brindavan Garden in Ayanambakkam, Chennai?

The price of Guru Brindavan Garden ranges between 55.16 L - 77.72 L *.

How many units are available in Guru Brindavan Garden?

There are about 126 units in this project.

What is the total area of Guru Brindavan Garden?

Guru Brindavan Garden Built across 3.75 Acres of land.

Projects Near Guru Brindavan Garden