KG Eleganza Overview

Property Type Flats
Project Location Mogappair, Chennai
Bedroom(s) 2,3 & 4 BHK
Unit Sizes 1017 - 2076 Sq.Ft
Price Range 99 L - 2.02 Cr (Base Price) *
Rate per Sqft 9,735
Total Land Area 11.8 Acres
No. of Units 127
Total Blocks 2
Total Floors Stilt + 15 Floors
Possession Ready to Occupy (Sep 2025)
Rera Id TN/02/BUILDING/0393/2021

Configuration

Config
Size (Sq.ft)
Price
2 BHK Flats
1017 - 1039
99 L - 1.01 Cr *
3 BHK Flats
1228 - 1377
1.19 Cr - 1.34 Cr *
4 BHK Flats
2040 - 2076
1.98 Cr - 2.02 Cr *

More About KG Eleganza

KG Eleganza is a high-rise project that offers apartments in Mogappair. A well-known residential locality surrounded by many tech parks and employment avenues. These flats are perfectly planned as 2, 3 & 4 BHKs for contemporary families. In fact, they have a luxurious carpet area ranging from 1017 - 2076 Sq.Ft. KG Eleganza is spread across a site area of 11.8 Acres, and 127 families share this site with you. That's not all this project comes with jaw-dropping amenities like a party lawn, a kid's play area, a joggers track, a swimming pool, and so on. Most importantly they have many show-stopping rooftop amenities that are designed to give you beautiful memories.

Address

Address: Service Road, Mogappair, Chennai, Tamil Nadu 600037, India.

Amenities

  • CCTV Camera
  • Table Tennis
  • Fitness Club
  • Rooftop Thaichi & Yoga Square
  • Open Air Gym
  • Foot Chi Pathway
  • Terrace Barbeque counter
  • Terrace Garden
  • Rooftop Sky Theatre Screens
  • Children’s play area
  • Basket ball half court
  • Lift
  • Party lawns
  • Walking and Jogging Track
  • Swimming pool
  • Pool table
  • Conference room

Photos & Videos

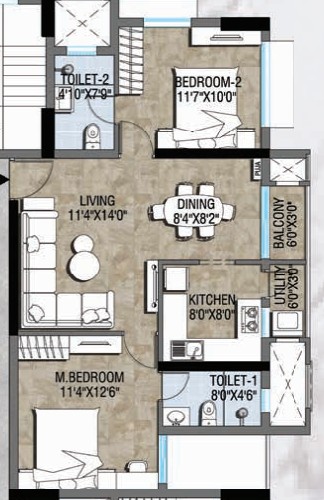
Floor Plans & Pricing

2 BHK Flats
3 BHK Flats
4 BHK Flats
1017 Sq.ft
1020 Sq.ft
1022 Sq.ft
1039 Sq.ft
2 BHK Price at 99 L* (Base Price)
2 BHK Price at 99.29 L* (Base Price)
2 BHK Price at 99.49 L* (Base Price)
2 BHK Price at 1.01 Cr* (Base Price)
1228 Sq.ft
1377 Sq.ft
3 BHK Price at 1.19 Cr* (Base Price)
3 BHK Price at 1.10 Cr* (Base Price)
2040 Sq.ft
2076 Sq.ft
4 BHK Price at 1.98 Cr* (Base Price)
4 BHK Price at 2.02 Cr* (Base Price)
EMI Calculator
Lakhs
0 25 50 75 100 125 150 175 200
%
5 7.5 10 12.5 15 17.5 20 22.5
Years
0 5 10 15 20 25 30 35
  • Cost of Home

    99 L

  • Loan Amount

    L

  • Monthly EMI

  • Total Interest Payable

  • Total Amount Payable

    Principal + Interest

FAQs About KG Eleganza in Mogappair, Chennai

Where is KG Eleganza located?

KG Eleganza is located in Mogappair, Chennai

What are the unit sizes available in KG Eleganza?

Unit sizes of the KG Eleganza ranges from 1017 - 2076 Sq.Ft .

Is the KG Eleganza RERA registered?

Yes, KG Eleganza is registered under TNRERA and the registration number is TN/02/BUILDING/0393/2021.

What is the price range of KG Eleganza in Mogappair, Chennai?

The price of KG Eleganza ranges between 99 L - 2.02 Cr *.

How many units are available in KG Eleganza?

There are about 127 units in this project.

What is the total area of KG Eleganza?

KG Eleganza Built across 11.8 Acres of land.

Projects Near KG Eleganza
Other Projects by KG Foundations (P) Limited