Rajkham Aishwaryam Castle Overview

Property Type Individual House
Project Location Gerugambakkam, Chennai
Bedroom(s) 3 BHK
Unit Sizes 1150 Sq.Ft
Price Range 92 L (Base Price) *
Rate per Sqft 8,000 *
Total Land Area -
No. of Units 22
Total Floors Ground + 1 Floor
Possession Under Construction (Jan 2027)

Price of Rajkham Aishwaryam Castle

Config
Size (Sq.ft)
Price
3 BHK House
1150
92 L *

More About Rajkham Aishwaryam Castle

Introducing a move-in-ready property in Gerugambakkam, Chennai. At Rajkham Aishwaryam Castle, living is not defined just by the size but also by the ownership it offers to the family. This project by Rajkham Builders Pvt Ltd brings true freedom by ending the shared walls. It adds silence, the most valuable feature of an independent structural design. Residents get privacy, the essential foundation for a peaceful and happy home. Members of 22 units get total liberation, space to breathe fresh air, and a healthy life. Freedom is outstanding for the families of 3 BHK homes, where they enjoy their king-size personal space. The elite seclusion it gives you is unmatched, allowing you to stay focused and move forward in absolute silence. Modern families appreciate the refined scale of Rajkham Aishwaryam Castle in Gerugambakkam. You can secure a finished masterpiece built on 1150 sq. ft., guaranteed with semi-furnished interiors. A modular kitchen provides the ultimate culinary joy.

Address

Address: Bharathi Nagar, Gerugambakkam, Chennai, Tamil Nadu 600128, India.

Amenities

  • Car Parking

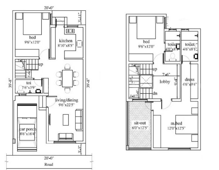
Floor Plans & Pricing

3 BHK House
1150 Sq.ft
3 BHK Price at 92 L* (Base Price)
EMI Calculator
Lakhs
0 25 50 75 100 125 150 175 200
%
5 7.5 10 12.5 15 17.5 20 22.5
Years
0 5 10 15 20 25 30 35
  • Cost of Home

    92 L

  • Loan Amount

    L

  • Monthly EMI

  • Total Interest Payable

  • Total Amount Payable

    Principal + Interest

FAQs About Rajkham Aishwaryam Castle in Gerugambakkam, Chennai

Where is Rajkham Aishwaryam Castle located?

Rajkham Aishwaryam Castle is located in Gerugambakkam, Chennai

What are the unit sizes available in Rajkham Aishwaryam Castle?

Unit sizes of the Rajkham Aishwaryam Castle ranges from 1150 Sq.Ft .

What is the price of Rajkham Aishwaryam Castle in Gerugambakkam, Chennai?

The price of Rajkham Aishwaryam Castle is 92 L *.

How many units are available in Rajkham Aishwaryam Castle?

There are about 22 units in this project.

What is the total area of Rajkham Aishwaryam Castle?

Rajkham Aishwaryam Castle Built across - of land.

Projects Near Rajkham Aishwaryam Castle