RK Sai Varshini Overview

Property Type Apartments
Project Location Madipakkam, Chennai
Bedroom(s) 2 & 3 BHK
Unit Sizes 890 - 1460 Sq.Ft
Price Range 86 L - 1.41 Cr * + Other Charges
Rate per Sqft 9,663 *
Total Land Area 0.01 Acres
No. of Units 8
Total Floors Stilt + 3 Floors
Possession Under Construction (Aug 2026)

Configuration

Config
Size (Sq.ft)
Price
2 BHK Flats
890
86 L *
3 BHK Flats
1205 - 1460
1.16 Cr - 1.41 Cr *

About RK Sai Varshini

Looking for a family-first nest in the city? RK Sai Varshini is taking shape in the heart of the city. This eye-catching project in Madipakkam, Chennai, is developed by RK Builders. This is fully built on the foundation of trust, transparency and timeliness. These core values make the transition to this place faster and easier for homebuyers. In just 0.01 acres, with efficient utilisation of small land, spacious rooms are offered ranging from 890 sq. ft. to 1460 sq. ft. The versatility of floor plans makes it adaptable to every family in one of the most sought-after locations. RK Sai Varshini in Madipakkam serves as a strategic point for growth and connectivity. You can conveniently choose a house from 2 and 3 BHK layouts. These are modern living spaces solving the practical needs of the city. 8 units in the close-knit community are well-connected. There is peace and harmony in the atmosphere, setting the mood of the members. It’s a space designed for those who prefer a curated, simple, and high-quality environment.

Address

Address: 3/296, Subramanian Nagar, Madipakkam, Chennai, Tamil Nadu 600091, India.

Amenities

  • Car parking
  • Lift
  • Rainwater harvesting
  • CCTV

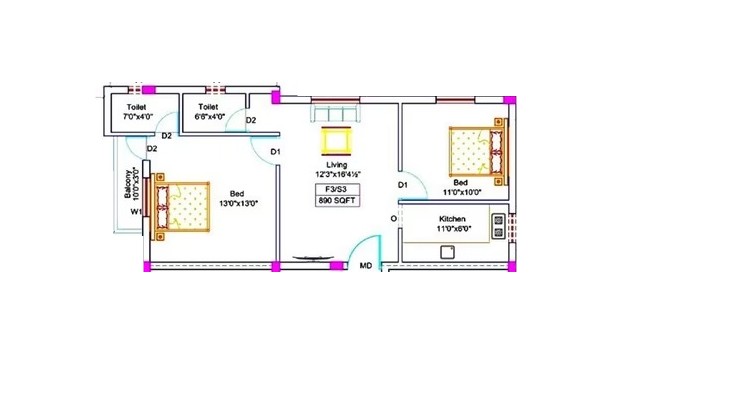
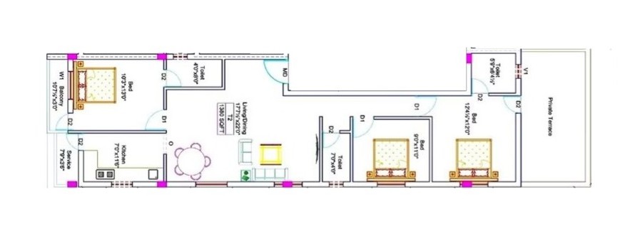
Floor Plans & Pricing

2 BHK Flats
3 BHK Flats
890 Sq.ft
2 BHK Price at 86 L* (Base Price)
1205 Sq.ft
1230 Sq.ft
1380 Sq.ft
1460 Sq.ft
3 BHK Price at 1.16 Cr* (Base Price)
3 BHK Price at 1.18 Cr* (Base Price)
3 BHK Price at 1.33 Cr* (Base Price)
3 BHK Price at 1.41 Cr* (Base Price)

EMI Calculator

Lakhs
0 25 50 75 100 125 150 175 200
%
5 7.5 10 12.5 15 17.5 20 22.5
Years
0 5 10 15 20 25 30 35
  • Cost of Home

    86 L

  • Loan Amount

    L

  • Monthly EMI

  • Total Interest Payable

  • Total Amount Payable

    Principal + Interest

FAQs About RK Sai Varshini in Madipakkam, Chennai

Where is RK Sai Varshini located?

RK Sai Varshini is located in Madipakkam, Chennai

What are the unit sizes available in RK Sai Varshini?

Unit sizes of the RK Sai Varshini ranges from 890 - 1460 Sq.Ft .

What is the price range of RK Sai Varshini in Madipakkam, Chennai?

The price of RK Sai Varshini ranges between 86 L - 1.41 Cr *.

How many units are available in RK Sai Varshini?

There are about 8 units in this project.

What is the total area of RK Sai Varshini?

RK Sai Varshini Built across 0.01 Acres of land.

Projects Near RK Sai Varshini
Other Projects by RK Builders