Safe Gokulam Overview

Property Type Apartments
Project Location Kolathur, Chennai
Bedroom(s) 2 & 3 BHK
Unit Sizes 1240 - 1530 Sq.Ft
Price Range 93 L - 1.14 Cr * + Other Charges
Rate per Sqft 7,500 *
Total Land Area 0.07 Acres
No. of Units 3
Total Floors Stilt + 3 Floors
Possession Under Construction (Dec 2026)

Configuration

Config
Size (Sq.ft)
Price
2 BHK Flats
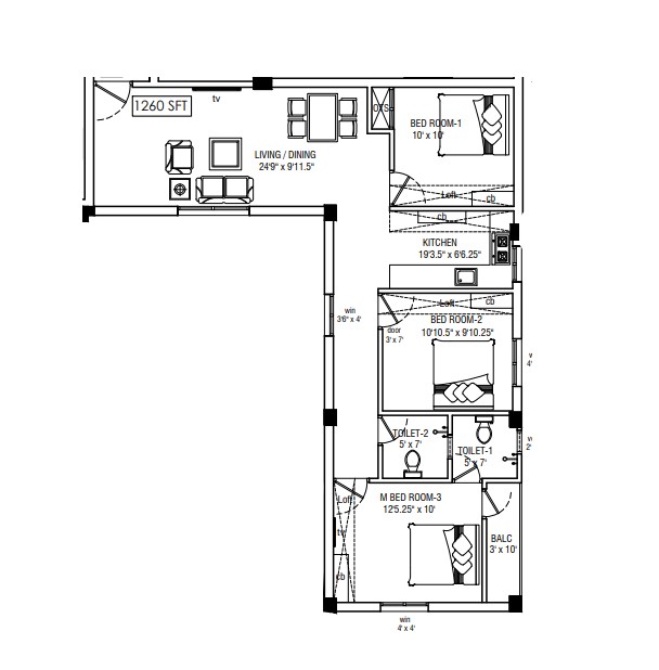
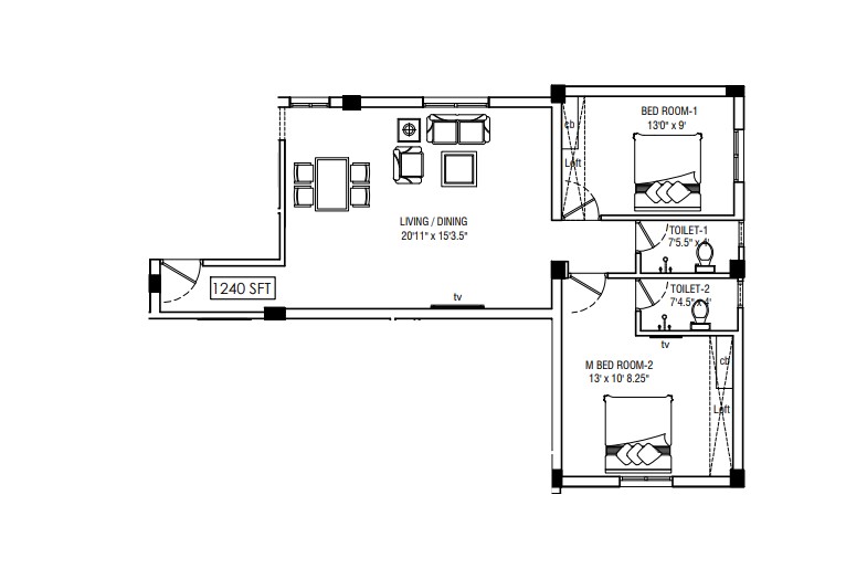
1240 - 1260
93 L - 94.5 L *
3 BHK Flats
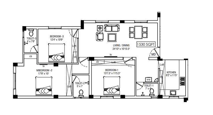
1530
1.14 Cr *

About Safe Gokulam

Imagine a life of high functionality in a spiritual aesthetic. That’s about Safe Gokulam, a divine destination developed by Safe Space Ventures. This project of 0.07 acres is making a major impact in the real estate industry of Kolathur, Chennai. It offers floor plans starting from 1,240 sq. ft. to 1,530 sq. ft. for versatile purposes. The flexibility of unit sizes allows you to choose your desired final address. The structure has homes in 2 and 3 layouts, offering the ultimate pride of owning an entire floor. You’ll enjoy a home designed to maximise your natural light and fresh airflow. This is a summer-proof community, offering huge relief during intense heat. The structure of Safe Gokulam in Kolathur is built for a convenient life. You're positioned here to witness transformation. It keeps 3 units in proximity to nearby services. You can easily experience top-tier life. With quick commute options, you spend less time in traffic and more time with family. Essential services are just a few drives away.

Address

Address: Kumaran Nagar, Teachers Colony, Kolathur, Chennai, Tamil Nadu 600099, India.

Amenities

  • Lift
  • Car Parking

Floor Plans & Pricing

2 BHK Flats
3 BHK Flats
1240 Sq.ft
1260 Sq.ft
2 BHK Price at 93 L* (Base Price)
2 BHK Price at 94.5 L* (Base Price)
1530 Sq.ft
3 BHK Price at 1.14 Cr * (Base Price)

EMI Calculator

Lakhs
0 25 50 75 100 125 150 175 200
%
5 7.5 10 12.5 15 17.5 20 22.5
Years
0 5 10 15 20 25 30 35
  • Cost of Home

    93 L

  • Loan Amount

    L

  • Monthly EMI

  • Total Interest Payable

  • Total Amount Payable

    Principal + Interest

FAQs About Safe Gokulam in Kolathur, Chennai

Where is Safe Gokulam located?

Safe Gokulam is located in Kolathur, Chennai

What are the unit sizes available in Safe Gokulam?

Unit sizes of the Safe Gokulam ranges from 1240 - 1530 Sq.Ft .

What is the price range of Safe Gokulam in Kolathur, Chennai?

The price of Safe Gokulam ranges between 93 L - 1.14 Cr *.

How many units are available in Safe Gokulam?

There are about 3 units in this project.

What is the total area of Safe Gokulam?

Safe Gokulam Built across 0.07 Acres of land.

Projects Near Safe Gokulam
Other Projects by Safe Space Ventures