Subramanyapuram Overview

Property Type Individual House
Project Location Kundrathur, Chennai
Bedroom(s) 2 BHK
Unit Sizes 720 Sq.Ft
Price Range 59 L (Base Price) *
Total Land Area Not Mentioned
No. of Units 4
Total Blocks Not Mentioned
Total Floors Not Mentioned
Possession Ready to Occupy

Price of Subramanyapuram

Config
Size (Sq.ft)
Price
2 BHK House
720
59 L *

More About Subramanyapuram

Are you looking for a stylish yet affordable individual villa in Bengaluru? Then you are at the right place as Sowrem Promoters presents Subramanyapuram a well-developed compact individual house in Kundrathur. One if Chennai's well-desired residential suburban areas that boast wonderful connectivity and developed infrastructure. In total, this community offers 2 BHK villas, expertly planned with a practical unit size of 720 Sq.Ft. Each villa here comes equipped with beautiful balconies, a private terrace, and a nice covered car park facility. In total, there are 4 houses for sale and they are all planned affordably and built by choosing premium materials and finishes.

Address

Address: Murugan Kovil Road, Kundrathur, Chennai, Tamil Nadu 600069, India.

Amenities

  • Drainage Facility
  • Black Top Roads
  • Excellent Ground Water
  • Street Lights
  • Transport Facility

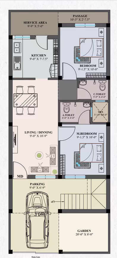
Floor Plans & Pricing

2 BHK House
720 Sq.ft
2 BHK Price at 59 L* (Base Price)
EMI Calculator
Lakhs
0 25 50 75 100 125 150 175 200
%
5 7.5 10 12.5 15 17.5 20 22.5
Years
0 5 10 15 20 25 30 35
  • Cost of Home

    59 L

  • Loan Amount

    L

  • Monthly EMI

  • Total Interest Payable

  • Total Amount Payable

    Principal + Interest

FAQs About Subramanyapuram in Kundrathur, Chennai

Where is Subramanyapuram located?

Subramanyapuram is located in Kundrathur, Chennai

What are the unit sizes available in Subramanyapuram?

Unit sizes of the Subramanyapuram ranges from 720 Sq.Ft .

What is the price of Subramanyapuram in Kundrathur, Chennai?

The price of Subramanyapuram is 59 L *.

How many units are available in Subramanyapuram?

There are about 4 units in this project.

What is the total area of Subramanyapuram?

Subramanyapuram Built across 0 Acres of land.

Projects Near Subramanyapuram